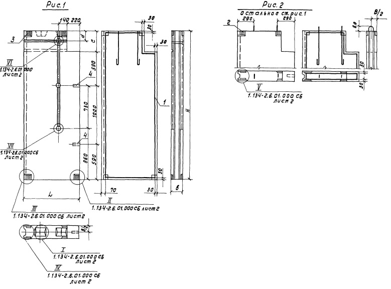
СБ 11.26.2-п-3

Чертеж изделия:
Чертеж СБ 11.26.2-п-3
Характеристики изделия:
ПараметрЗначение
Длина1040 мм
Ширина200 мм
Высота2540 мм
Масса800 кг
Нормативный документСерия 1.134-2

Блоки внутренних стен из легких бетонов толщиной 16 и 20 см  для жилых зданий высотой 1-4 этажа и общественных зданий высотой 1-3 этажа по Серии 1.134-2.

СБ 11.26.2-п-3  Стеновой блок.